Neubau | Wohnung | 1.498.800 €

Im Detail:
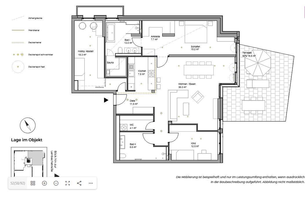
Der offene Wohn-/ Essbereich setzt luxuriöse Akzente und öffnet den Blick in den privaten Gartenbereich, sodass sich der Raum optisch vergrößert. Zwei stilvolle Bäder unterstreichen die Exklusivität der Wohnung. Raffinierte Sichtachsen schaffen eine fließende Verbindung zwischen Innen und Außen, während die eigene Sauna, das Ankleidezimmer und der Wellness-/ Fitnessbereich perfekt in den harmonischen Grundriss integriert sind. Der private Garten erweitert den Wohnraum ins Freie – ein Refugium, das Ruhe und Weitblick vereint.
FÜR KAPITALANLEGER: Profitieren Sie von der 5% degressiven Abschreibung (AfA) und sichern Sie sich eine wertbeständige Investition – Ihre Exklusivität und Weitsicht, perfekt vereint.
Architektur:
Die Kubatur der Privatheit. So könnte man das Kunststück nennen, das dem renommierten Architekturbüro blocher partners mit dem Wohnhaus gelungen ist. Ein Mehrfamilienhaus mit 21 Wohneinheiten, verteilt auf sechs Wohnetagen. Jedes Geschoss hat seine eigene Charakteristik und jede Wohnung gewährt ein Maximum an Privatsphäre.
Identitätsstiftend und auffallend anders. Dabei fügt sich das neue Wohnhaus harmonisch in die Umgebung ein und überrascht auf jeder Gebäudeseite mit einer anderen Ansicht. Das geschlämmte Mauerwerk unterstreicht die natürliche und zurückhaltende Optik.



Energieausweis: Bedarfsausweis, 22,3 kWh/ (m²*a)
Energieträger: Strom-Mix (Photovoltaik und Geothermie)
Energieeffizienzklasse A+
Baujahr Gebäude lt. Energieausweis: 2025
Baujahr Wärmeerzeuger: 2025
Beliebte Lage:
DER KILLESBERG
Einerseits traditionsreich, andererseits lebensfreudig und kreativ: Ob Weißenhofsiedlung oder Bismarckturm, ob die Sportanlagen des MTV Stuttgart oder die beiden Traditions-Tennisclubs Weissenhof und Doggenburg, ob beliebte Restaurants, Shoppingzentrum oder Kunstakademie – der Killesberg bietet Anziehungspunkte für Jung und Alt.
Hochwertige Ausstattung
KURZER AUSZUG AUS UNSERER BAUBESCHREIBUNG
- DGNB Zertifizierung (Gold angestrebt)
- KFW-Effizienzhaus 55 (mit Geothermie und Photovoltaik-Dachhaut)
- Hochwertige Bodenbeläge
- Holz-Alu-Fenster
- Elektrisch betriebene Jalousien mit Einzelsteuerung
- Wohnungsinnentüren stumpf einschlagend mit verdeckt liegendem Türband
- Bäderausstattung von Markenherstellern wie Fantini, LAUFEN, BETTE und HEWI
- Vorinstallierte Beleuchtung in Fluren und Bädern
- Kostenfreie Nutzung von Internetanschluss für die ersten 24 Monate
- eine Wallbox mit intelligentem Lastenmanagement plus Steckdose pro Wohnung
- Attraktiv gestaltete und beleuchtete Frei- und Gemeinschaftsflächen
- Regenwasserzisterne für die Bewässerung der gemeinschaftlichen Außenflächen
- komfortabel anfahrbare Tiefgaragenstellplätze
Grundriss

Datenschutz:
Datenschutz: Damit wir Ihre Anfrage bearbeiten können, stimmen Sie mit dem Absenden Ihrer Anfrage der Speicherung Ihrer persönlichen Daten in unserem Hause zu, eine Weitergabe Ihrer Daten an Dritte erfolgt nicht. Eine Löschung Ihrer Daten ist auf Ihren Wunsch hin jederzeit möglich. Über unsere Datenschutzerklärung nach DSGVO können Sie sich jederzeit unter https://www.wohnbaustudio.de/datenschutz/ informieren.
Wir möchten Sie darauf aufmerksam machen, dass die Angabe Ihrer Telefonnummer die Bearbeitung Ihrer Anfrage verkürzt und erleichtert.
Gerne stellen wir Ihnen auf Ihre Anfrage hin ein vollständiges Exposé zur Verfügung und vereinbaren gerne einen Besichtigungstermin mit Ihnen.
Wir freuen uns auf Ihre Kontaktaufnahme!
Bildzusatzinformationen:
Unverbindliche Visualisierung. Darstellung kann Sonderwünsche enthalten.
Immobilieneigenschaften
Standort
Killesberg, Stuttgart, Deutschland
Berater
Christine Schaber
Geschäftsführerin & Leitung Vertrieb
christine.schaber@wohnbaustudio.de
Contact
Similar Properties (19)
